ソリューション SOLUTION
オフィスのリニューアル
受付・エントランスのイメージチェンジや、社内の組織変更にあわせたレイアウトの変更をはじめ、ITのさらなる推進、セキュリティーの強化、地震対策など、さまざまなご要望にお応えします。
3つの特長
-

オフィスにおける音環境、光環境、熱空気環境などに関して社員のみなさまの感じ方を調査し、リニューアルに際して改善すべき点をピックアップ。空間の快適性を向上させながらオフィスコストの低減を実現します。
-

オフィスのスペースにあわせてサイズを変えたり、使い勝手にあわせてカタチを変えたり、イメージにあわせてカラーや素材を変えたり…。そんなご要望もナイキなら別製家具によってお手頃なご予算で対応します。
-

ナイキが全工程をトータルに行うため、リニューアルの効率化が可能。土曜日・日曜日など休日だけを利用して工事を完了させることもでき、仕事の中断などのご迷惑を最小限に抑えます。
オフィスリニューアルの一例
レイアウトの変更
社内の組織変更にあわせたレイアウトの変更をお考えの方に、より最適なプランのご提案・施工を行います。
セキュリティーの強化
社員の方々の使い勝手のよさを保ちながら、各部屋の重要度に応じたセキュリティーを実現します。
エントランスの改装
お客様の第一印象を高めるために、会社の個性を表現する洗練されたエントランスへと改装します。
内装の施工
OA機器の配線処理にお困りの場合には、床下に配線をすっきり隠すOAフロア(フリーアクセスフロア)がおすすめです。
喫煙ルームの設置
分煙スペースが求められるなか、既存ビル設備を活かしながら喫煙者にも配慮した空間をご提案・施工します。
地震対策
地震に備えてオフィスの現状を徹底調査したのち、危険な箇所に対して地震対策機能をもつ製品をご提案・施工します。
メッセージ
納入事例





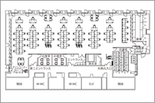
機器メーカーA社 東京支店
優美さと使いやすさ、
地震対策を融合させた空間をご提案。
コーポレートカラーのブルーが映えるように、事務室はホワイト色の家具を中心にコーディネート。容量を確保できる並行移動書庫を集中して配置し、書類の管理をしやすくしました。収納庫は高さを抑えることで、見通しのよい開放感のある空間に。さらに、地震への備えとして収納庫の固定を行っています。また、会議室や休憩コーナーも併せて提案・施工しました。
